26 MarProyecto SEMilla
En un asentamiento de la localidad de Tigre, provincia de Buenos Aires, antes del ingreso de la Asociación Civil LIBERTAD ETERNA en sus vidas, la familia compuesta por Mabel y sus cinco hijos ocupaban una precaria casilla de 3 x 3 m la cual carecía de condiciones de habitabilidad. La Asociación recurrió al Centro de Estudios en Tecnología y Producción de la Facultad de Arquitectura de la Universidad de Palermo, a fin de obtener ideas respecto de la vivienda que autoconstruirían voluntarios del propio asentamiento, junto a los integrantes de la familia.
Introducción
Conforma un acto imprescindible pensar que las sociedades actuales puedan anclar sobre la idea pregnante de formar seres solidarios, quienes indaguen alternativas posibles de realización; acción que permita gestar proyectos demostrativos de un exclusivo propósito: Un mejor hábitat.
Así nació SEM…
SUELO; estimando la implantación y adaptabilidad de la vivienda
ESPACIO; el cual involucra la evolución y etapabilidad del crecimiento
MATERIAL; expresando la productividad y tecnología del planteoUna SEMilla que busca rendir frutos para una familia de Tigre y replicarse en muchas otras…
El Proyecto
SEMilla aborda una instancia donde la o las familias sean capaces de optimizar sus niveles de convivencia e inserción socio-comunitaria, logrando considerar así, no sólo espacios de vida, sino tangibles oportunidades de realización laboral en función de paliar las desigualdades existentes.
El Proyecto SEMilla, en tal sentido, apunta a la autosustentabilidad y la posibilidad de satisfacción de las necesidades que aquellos habitantes transiten, por ello, se pondrá en valor el espacio como oportunidad de transformación, generando en él y sus ocupantes, las modificaciones requeridas para lograr elementales condiciones de vida.
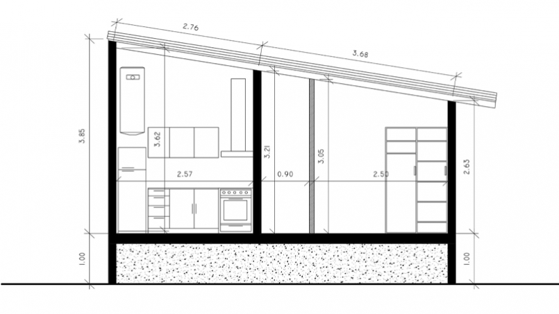
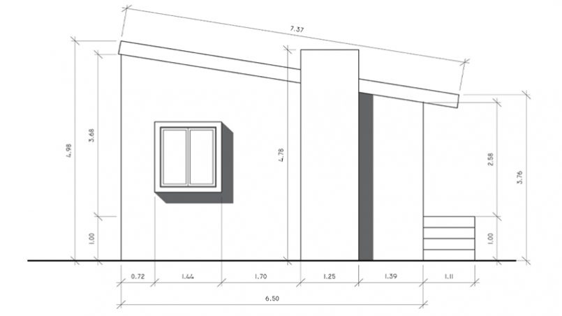
Descargá la Planimetría completa, haciendo click AQUI!
La Historia
Así nos encontramos con la posibilidad de interactuar con un modelo de familia de los tantos posibles, donde la imagen central materna resulta excluyente. Mabel (44) es la única integrante con trabajo estable y quien mantiene económicamente a sus cinco hijos; Sofía (17) divide las tareas del hogar para colaborar junto con sus hermanos. Victoria (12) es la cocinera oficial del clan. Los tres varones, Leandro (18), Gabriel (14) y Thiago (9) se encargan de limpiar, lavar la ropa y ordenar la casa, aunque el primero de ellos piensa en conseguir un trabajo cuando termine el secundario para apuntalar el sustento familiar.
En las charlas que mantuvimos nos relataron hermosas vivencias. Por ejemplo, la importancia que reviste para ellos reunirse juntos en torno a un fogón, evento particularmente significativo. Un ardor que no solo es utilizado para cocinar, sino, además, para alimentar el momento donde comparten los hechos del día a día. También narraron experiencias negativas: En la precaria casilla donde habitaban no tenían acceso a la privacidad y para poder mudarse la ropa, los hermanos debían salir, sin importar que fuese invierno, verano o arreciaran las peores condiciones climáticas.
La materialidad
En lo relativo a la materialidad, la vivienda fue diseñada para ser autoconstruida de manera racional con un espacio de trabajo y escritorios para cada niño, apostando al esfuerzo y al conocimiento. Buscamos un partido que crece en etapas, con dos volúmenes simples y un espacio intermedio exterior. La sencillez tecnológica hace foco en el bajo costo y el ahorro de energías por medio de sistemas sustentables.
Se propuso entonces analizar soluciones desde el punto de vista termo-estético, disminuyendo el consumo de energías y aumentando el confort interior, por medio de medidas pasivas, disponiendo del espacio exterior y aéreo en las medianeras, frentes y fondos de los edificios existentes o a construir. Tecnología y Diseño fusionados en un juego de amalgamas donde el Sol dialogue con la estática y la estética.
Ficha Técnica
OBRA: Vivienda Unifamiliar.
PROMOTOR: Fundación Libertad Eterna.
EQUIPO DE DOCENTE de la FACULTAD DE ARQUITECTURA, UNIVERSIDAD DE PALERMO: Arq. José Torrado Maceiras. Arq. Pablo Rodríguez Acevedo y Arq. Gustavo Di Costa.
EQUIPO DE ESTUDIANTES: Tamara Benedini, Malena Donadío, Martina Faramiñan Jarak, Joanne Marie Glynn Peña, Candela Jimena, Ayelen Lantaño, Martina Marcello, Joaquín Montero, Facundo Palmou, Vanesa Mariel Requena, Nicolás Rodriguez Morera, Juana del Pilar Rolandeli, Carolina Sacco Moriconi y Florencia Schvartz.
La Universidad
El Centro en Desarrollo en Tecnologías y Producción (CEDTYP) de la Facultad de Arquitectura de la Universidad de Palermo, conforma un grupo de trabajo donde profesores y estudiantes fusionan sus experiencias y conocimientos para impulsar proyectos de investigación, capacitación y responsabilidad social.
Contacto: Instagram: @practicaenconstrucciones
La colaboración
Desde luego, toda donación de materiales y distintos componentes constructivos serán más que bienvenidos. Apelamos para ello a los integrantes de aquellas firmas de la industria de la construcción con RSE (Responsabilidad Social Empresaria) a que consideren esta propuesta.
La Fundación
Libertad Eterna es una ONG sin fines de lucro dedicada a la dignificación de personas en situaciones de vulnerabilidad social que trabaja atendiendo distintas problemáticas como violencia, abuso, maltrato infantil, adicciones y violencia de género.
https://www.libertadeterna.com/
Contacto: libertadeternatigre@gmail.com
Casaretto 239, Tigre - Bs. As. Argentina. 54911-6002-1481




